¹ãÖÝÉú̬Éè¼ÆÐ¡Õò¡¤ÔƹÈÃÎÖþ
| ¿ª·¢ÉÌ ¹ãÖÝÊÐÀ¤ÖÇ·¿µØ²ú¿ª·¢ÓÐÏÞ¹«Ë¾ | ¾°¹ÛÉè¼Æ ggpoker¹ÙÍø¹ãÖÝÉè¼ÆÔº | ÏîÄ¿ËùÔÚ ¹ãÖÝ´Ó»¯ | Éè¼ÆÊ±¼ä 2020Äê10Ô |



Ô°µØÎ©É½ÁÖ×îʤ£¬£¬£¬£¬£¬£¬£¬
ÓиßÓа¼£¬£¬£¬£¬£¬£¬£¬ÓÐÇúÓÐÉ£¬£¬£¬£¬£¬£¬
Óоþ¶øÐü£¬£¬£¬£¬£¬£¬£¬ÓÐÆ½¶øÌ¹£¬£¬£¬£¬£¬£¬£¬
×ÔÕû×ÔȻ֮Ȥ£¬£¬£¬£¬£¬£¬£¬²»·³ÈËÊÂÖ®¹¤¡£¡£¡£¡£¡£¡£¡£
Èë°ÂÊèÔ´£¬£¬£¬£¬£¬£¬£¬¾ÍµÍÔäË®£¬£¬£¬£¬£¬£¬£¬
ËÑÍÁ¿ªÆäѨ´£¬£¬£¬£¬£¬£¬£¬Åàɽ½ÓÒÔ·¿ÀÈ¡£¡£¡£¡£¡£¡£¡£
¡ª¡ª¡¶Ô°Ò±¡¤É½Áֵء·
ÔÆ¹ÈÃÎÖþÏîÄ¿×øÂäÔÚÁ÷ϪºÓÅԵĴӻ¯Á¼¿ÚÌìÏÂÉú̬Éè¼ÆÐ¡Õò£¬£¬£¬£¬£¬£¬£¬ÕâÀïµÄÎÂȪ×ÊÔ´¸»ºñ£¬£¬£¬£¬£¬£¬£¬ËØÓС°ÁëÄϵÚһȪ¡±µÄöÁÓþ¡£¡£¡£¡£¡£¡£¡£
Yungu Mengzhu Project is located at Liangkou World Ecological Design Town of Conghua, next to Liuxi River. It is rich in hot spring resources and is known as "the best spring in Lingnan". The site is adjacent to an old glucose factory.

Ô´×ԹȸèÎÀÐǵØÍ¼
Ô°µØÅþÁÚÍâµØµÄ¾ÉÆÏÌÑÌdz§£¬£¬£¬£¬£¬£¬£¬¹ýÍùÒÅÁôµÄ´óÊ÷¡¢´ÓɽÉÏÁ÷ÌʶøÏµÄϪˮ¸øÓèÔ°µØÓÆÈ»¾²Ú׵ĵ×É«£¬£¬£¬£¬£¬£¬£¬ÐγÉÁË¡°Ò»ÏªÁ½ÍåÓ³Çàɽ¡±µÄÆæÒìÃûÌᣡ£¡£¡£¡£¡£¡£
The remained big trees left in the past and the stream flowing down from the mountain gave the site a leisurely and quiet background, forming a unique picture of ¡°One stream, two bays, and green mountain¡±.


Õâ¸öÏîÄ¿ÊÇÎÒÃÇÊ×´ÎÂäµØÊµ¼ùÔ°ÁÖ¡¢ÐÞ½¨¡¢ÊÒÄÚµÄÒ»Ì廯Éè¼Æ£¬£¬£¬£¬£¬£¬£¬ÎÒÃÇÂÞÖ¡¶Ô°Ò±¡·µÄ¾«Ë裬£¬£¬£¬£¬£¬£¬ÒÔ¡°×ÔȻ΢ÐÞ½¨¡±ÎªÉè¼ÆÀíÄ£¬£¬£¬£¬£¬£¬Ï£ÍûÔÚСÕòÃÅ»§ÕâÒ»Òªº¦½ÚµãÍŽ᱾ÍÁÐÔÓë¹ú¼ÊÐÔ£¬£¬£¬£¬£¬£¬£¬´òÔì¶À¾ßÕÑʾ¸ÐµÄ¾°¹Û½çÃæ¡£¡£¡£¡£¡£¡£¡£
We draw on the essence of ¡°Yuan Ye¡± and took ¡°natural micro-architecture¡± as the design concept. We hope to combine locality and internationality at the key node of the town portal, to carry out the integrated design of gardens, buildings, and interiors to create a unique landscape interface.

Ϊ´Ë£¬£¬£¬£¬£¬£¬£¬ÎÒÃÇÍŽáÔ°µØ×Ô¼ºµÄ×ÔÈ»Ìõ¼þ£¬£¬£¬£¬£¬£¬£¬ÔÚÐÞ½¨Éè¼ÆÉÏ£¬£¬£¬£¬£¬£¬£¬½ÓÄÉÁ˼òÔ¼Á÷ͨµÄÏßÌõ£¬£¬£¬£¬£¬£¬£¬ÒÔ´óÆ¬µÄ²£Á§È¡´úÁË×è¸ôÊÓÏßµÄÇ½Ãæ£¬£¬£¬£¬£¬£¬£¬´òÔìÆ¯¸¡µÄºÐ×Ó£¬£¬£¬£¬£¬£¬£¬ÒÔ´ËÖ¾´Å®Ê¿µÄ·¶Ë¹ÎÖ˹±ðÊûÓëÀ³ÌصÄÁ÷Ë®±ðÊû¾µäÉè¼Æ¡£¡£¡£¡£¡£¡£¡£
Therefore, we combined the natural conditions of the site, adopted simple and smooth lines in the architectural design, replaced the wall blocking the sight with a large piece of glass, a floating box was created. The combination is to pay tribute to the classic design of Mies' Farnsworth House and Wright's Fallingwater.
ÐÞ½¨¼ÈΪ¾°¹Û£¬£¬£¬£¬£¬£¬£¬¶ø¾°¹ÛÒ²¼æ¾ß¼øÉÍÐÔÓ빦ЧÐÔ£¬£¬£¬£¬£¬£¬£¬´Ó¶ø³ÉΪһ¸öÍêÕûµÄ¹«¹²ÇéÐΡ£¡£¡£¡£¡£¡£¡£
The building is not only architecture but also an ornamental and functional landscape, thus becoming a complete public environment.

»ùÓÚÏîÄ¿×Ô¼ºÓµÓеĸ»ºñ×ÊÔ´£¬£¬£¬£¬£¬£¬£¬Ã¯ÃܵÄÖ²Îï¡¢×ÔÈ»µÄË®ÂöºÍ¾ßÓи߲îµÄÕóÊÆ£¬£¬£¬£¬£¬£¬£¬Éè¼ÆÊ¦¸üÏ£Íû½ÓÄÉ¡°Çá½éÈ롱µÄÔì¾°·½·¨£¬£¬£¬£¬£¬£¬£¬³ä·ÖʹÓÃÍâµØÔÉúµÄ×ÊÔ´£¬£¬£¬£¬£¬£¬£¬Ê¹Éè¼ÆÓë×ÔȻͬÌå¹²Éú£¬£¬£¬£¬£¬£¬£¬Õ¹Ê¾Ð¡Õò×Ô¼ºµÄÓÅÃÀ·çò¡£¡£¡£¡£¡£¡£¡£
Based on the rich resources of the project itself, dense plants, natural water veins, and terrain with height differences, the method of "light intervention" was adopted, making full use of local resources to integrate the design and nature, showing the natural beauty of the town.

ÓÉÓÚÕóÊÆ±£´æµÄ½Ï´ó¸ß²î£¬£¬£¬£¬£¬£¬£¬Éè¼ÆÊ¦ÒòµØÖÆÒË£¬£¬£¬£¬£¬£¬£¬¡°Èë°ÂÊèÔ´£¬£¬£¬£¬£¬£¬£¬¾ÍµÍÔäË®¡±£¬£¬£¬£¬£¬£¬£¬½«ÆäÒýÈëÔ°µØÖ®ÖС£¡£¡£¡£¡£¡£¡£ÍŽáСÕòÖ÷ÒªÂ̵À£¬£¬£¬£¬£¬£¬£¬¹¹½¨Ò»¸±É½Ë®³¤Öá¡£¡£¡£¡£¡£¡£¡£
Due to the large height difference of the terrain, designers adapted to local conditions by "cutting the water at a low level to save resources and costs". Combined with the main greenway of the town, a long axis of a landscape is constructed.


Ô°µØ½â¹¹
Ô°µØÖУ¬£¬£¬£¬£¬£¬£¬ÐÞ½¨´Ó×ÔÈ»ÖÐÉú³¤³öÀ´£¬£¬£¬£¬£¬£¬£¬ÀǼ®É½Ê¯¡¢ÁÖ´øË®É¼¡¢¾²Ú×ԶɽÓë³Î¾»Ìì¿ÕÏàµÃÒæÕᣡ£¡£¡£¡£¡£¡£
On the site, the building grows out of nature, with scattered rocks, forested Metasequoia, quiet mountains, and clear sky complementing each other.

ÎÒÃÇÏ£ÍûÔÚÓÐÏ޵Ŀռä±ê׼ϣ¬£¬£¬£¬£¬£¬£¬Äܹ»³ä·ÖʹÓÃÏÖÓÐ×ÊÔ´£¬£¬£¬£¬£¬£¬£¬´ÓÊÓ¾õºÍ¾«Éñ²ãÃæ×î´ó»¯Ðð˵԰µØÌØÖÊ¡£¡£¡£¡£¡£¡£¡£
We hope to make full use of the existing resources under the limited spatial scale to maximize the narrative of the site characteristics from the visual and spiritual levels.


ÒýË®ÈëÔ°ºó£¬£¬£¬£¬£¬£¬£¬ÎÒÃǾÙÐÐÁËÒ»´ÎÉè¼ÆÊµ¼ù¡ª¡ªÎÒÃǽ«×ÔÈ»µÄɽˮÓ빦ЧµÄÌå¿éÕûÌåÈںϣ¬£¬£¬£¬£¬£¬£¬Ìá³ö¡°ÊǷǺÐ×Ó¡±µÄÉè¼ÆÉèÏ룬£¬£¬£¬£¬£¬£¬Òâͼ´Ó¹Å°åµÄÔ°ÁÖά¶È¾ÙÐÐÒ»´ÎÍ»ÆÆ£¬£¬£¬£¬£¬£¬£¬´ÓÐÞ½¨ÈëÊÖ£¬£¬£¬£¬£¬£¬£¬´òÔìÒ»¸öά¶È¿Õ¼ä¡£¡£¡£¡£¡£¡£¡£
After the water was introduced into the garden, we conducted a practice - the natural landscape and functional blocks were integrated as a whole. We proposed an idea of making a "black and white box", intending to make a breakthrough from the traditional garden dimension, starting from architecture, creating a dimensional space.

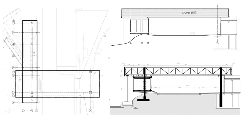
ÏîÄ¿Æ½ÃæÍ¼

ÃÅ»§ÐÞ½¨½á¹¹Í¼&Æ½ÃæÍ¼&Á¢ÃæÍ¼
ÃÅ»§ÔÚÕâÀïÊÇÂÃÓζ¯ÏßµÄͨÐе㣬£¬£¬£¬£¬£¬£¬Ò²ÊÇÓο͵ÄÐÝí¬µã£¬£¬£¬£¬£¬£¬£¬ÕûÌ峤½ü40Ã×£¬£¬£¬£¬£¬£¬£¬Ê¹ÓÃ3Ã׵ĸ߲£¬£¬£¬£¬£¬£¬Ðü¸¡ÔÚɽϪ֮ÉÏ¡£¡£¡£¡£¡£¡£¡£
The portal is the passage point and resting point for tourists. The overall length is about 40 meters , and it is suspended above the mountain stream by using a 3-meter height difference.

Ô°µØµÄ¸ß²î¸øÓ趯Ïß¡°ÐÐÉ½ÉæË®¡±µÄ¹ÛÓÎÌåÑ飬£¬£¬£¬£¬£¬£¬´òÔìÁËÈËÓë×ÔÈ»¡¢ÈËÓë¿Õ¼ä½»»¥µÄÎïÖÊÇéÐΣ¬£¬£¬£¬£¬£¬£¬¸»ºñ¿Õ¼äÌõÀíµÄÇéȤÐÔ¡£¡£¡£¡£¡£¡£¡£
The height difference of the site makes residents feel as if climbing mountains and wading through rivers, creates an interaction environment for human and nature, human and space, enriching the hierarchy of the space.

ÔÚÉè¼ÆÊ¦µÄ¹¹ÏëÖУ¬£¬£¬£¬£¬£¬£¬Èë¿Ú²»ÔÙ½ö½öÊÇ¡°ÃÅ¡±£¬£¬£¬£¬£¬£¬£¬¶øÊÇ×Գɾ°ÎïµÄÐÞ½¨£¬£¬£¬£¬£¬£¬£¬Êǹ۾°µÄ»¿ò£¬£¬£¬£¬£¬£¬£¬Êǹ¦Ð§Óë¾°¹Û¹²Ó®×î´ó»¯µÄÌåÏÖ¡£¡£¡£¡£¡£¡£¡£
In the designer's conception, the entrance is no longer just a "door", but an architecture that can become a scenery, a picture frame for viewing, and a manifestation of maximizing the win-win situation between function and landscape.


ɽˮæäÕ¾µÄÉè¼ÆÁé¸ÐȪԴÓÚÕ¹ÀÀ³÷´°£¬£¬£¬£¬£¬£¬£¬ÊÇÕ¹Ê¾Çø×îÖ÷ÒªµÄչʾ¾°¹Û£¬£¬£¬£¬£¬£¬£¬ÐÐÈËÔÚÆäÖпÉÒÔÈ«ÀÀ¾°ÇøÉ½Ë®£¬£¬£¬£¬£¬£¬£¬²£Á§ºóÐÐÈ˵ÄÉíÓ°Ò²³ÉΪΨһÎÞ¶þµÄ¾°Ö¡£¡£¡£¡£¡£¡£¡£
The design inspiration of the Shanshui Station comes from the exhibition window, which is the exhibition area for landscape display. Pedestrians can have a panoramic view of the scenic landscape in it, and the pedestrians behind the glass also become a unique scenery.


ÊÒÍâ¹ÛÖ®£¬£¬£¬£¬£¬£¬£¬ÈËÃÇ¿ÉÖ±¹Û¸ÐÊܿռäµÄÒÕÊõÆø·Õ£¬£¬£¬£¬£¬£¬£¬Èç³÷´°Í¸³öµÄ¾°Î£»£»£»£»£»ÊÒÄÚÍûÖ®£¬£¬£¬£¬£¬£¬£¬ÓÖÄÉÍⲿ¾°¹ÛÓëÌì¿ÕÓÚÊÓ¾õ½çÃæ£¬£¬£¬£¬£¬£¬£¬È绿òÖжà²ÊµÄ»æ»¡£¡£¡£¡£¡£¡£¡£
Residents can intuitively enjoy the artistic atmosphere of the space from the exterior, such as the scenery from the window; the external landscape and
the sky are incorporated into the visual interface from the interior, such as colorful painting in the frame.



ÐþÉ«µÄÐÞ½¨Ìå¿é×÷ÎªÔÆ¹ÈÃÅ»§£¬£¬£¬£¬£¬£¬£¬½ÓÄÉÁËÈ´¹¹ÖùÖÐÖõÄÒ»Ì廯Éè¼Æ£¬£¬£¬£¬£¬£¬£¬Ðü¸¡ÓÚ°×É«ºÐ×ÓÖ®ÉÏ£¬£¬£¬£¬£¬£¬£¬Ðγɳ¡ºÏ¾ßÓÐÕÑʾÐÔµÄÖ÷Èë¿Ú¡£¡£¡£¡£¡£¡£¡£
The black building block, as the gateway to the site, adopts the integrated design of the structure column in the middle, suspended above the white box, forming the main entrance of the place.


ʹÓÃÐÞ½¨µÄÇÉÃî·ºÆð£¬£¬£¬£¬£¬£¬£¬ÎÒÃÇ´Ó¿ò¾°Ö®ÖÐÄܹ»Íû¼ûÔ¶·å²ãµþºÍĺɫì½ì»£¬£¬£¬£¬£¬£¬£¬É½¹âºÍö«Ô¶¼ÄÜͨͨÊÕÈëÑÛÖУ¬£¬£¬£¬£¬£¬£¬µÃÌì¶ÀºñµÄ×ÔÈ»ÇéÐÎÓëÐÞ½¨ÐγÉÁËÄÚÍâÉøÍ¸µÄ¹ØÏµ¡£¡£¡£¡£¡£¡£¡£
Using the ingenious presentation of the building, we can see the cascading peaks and twilight from the framed scene, and the mountain light and the moon can be seen all together. The unique natural environment and the architecture have formed a relationship between inside and outside penetration.



´Ó»¯Éú̬Éè¼ÆÐ¡ÕòÊÇÌìÏÂÉú̬´ó»áµÄÓÀÊÀ»áÖ·ËùÔÚ£¬£¬£¬£¬£¬£¬£¬¶ø»áÖ·ÖÐÐÄҲչʾÁËÖÖÖÖ¸÷ÑùµÄ¹¤ÒµÒÕÊõÆ·¡£¡£¡£¡£¡£¡£¡£Éè¼ÆÊ¦Ñ¡Ôñ½«Õ¹³ö×÷Æ·ÑÓÐø£¬£¬£¬£¬£¬£¬£¬ÔÚ³÷´°ÖоÙÐÐÕ¹Êլ뻥¶¯£¬£¬£¬£¬£¬£¬£¬Ê¹°×É«ºÐ×Ó¼æ¾ßչʾÐÔÓ빦ЧÐÔ¡£¡£¡£¡£¡£¡£¡£
Conghua Ecological Design Town is the permanent site of the World Ecological Conference, and the center of the site also displays a variety of industrial artworks. The design continues displaying and interacting with the exhibited works in the window, making the white box both display and function.

³÷´°°²ÅÅͼ
ÊÒÄڵĿռäÕûÌåÒÔ´ó·ùËØ¾»µÄÉ«µ÷ÓªÔìÒÕÊõ¿Õ¼äÆø·Õ£¬£¬£¬£¬£¬£¬£¬Í¨¹ýÃæµÄÑÓÉ죬£¬£¬£¬£¬£¬£¬Ïû³ýÁ˿ռäÄÚ²¿Æ½Ãæ¡¢Á¢Ãæ¡¢½á¹¹¼äµÄÇø¸ô£¬£¬£¬£¬£¬£¬£¬ÕóÁеÄÅŲ¼Ò²´´Ôì³öÒ»ÖÖÖÈÐò¸Ð¡£¡£¡£¡£¡£¡£¡£
The interior space as a whole creates an artistic space atmosphere with large and pure tones. Through the extension of the surface, the division between the interior plane, facade and structure of the space is eliminated, and the arrangement of the array also creates a sense of order.


͸¹ý³÷´°£¬£¬£¬£¬£¬£¬£¬Éè¼ÆÊ¦ÓªÔìÁËÒ»ÖÖͨ͸¶øÄ£ºýµÄ¿Õ¼ä½çÏß¡ª¡ªÒÀ¾ÝËÄʱÓëÖçÒ¹Ò»Ö±±ä»»µÄ¾°ÎïºÍÐÐÈË£¬£¬£¬£¬£¬£¬£¬ÓÌÈçÏÞÖÆÖ÷ÌâÏÂËæ»úµÄÇé¾°¾ç£¬£¬£¬£¬£¬£¬£¬»¥Îª¾°Îï¡£¡£¡£¡£¡£¡£¡£ÈËÃǵÄÑÛ¹â͸¹ý³÷´°µÄ°ÚÉ裬£¬£¬£¬£¬£¬£¬ÍùÍù»áϽµÔÚÏëÏóÔõÑù¹¹½¨¸ü¸»ºñµÄÉúÑÄÉÏ¡£¡£¡£¡£¡£¡£¡£
Through the window, the designer has created a transparent and blurred space boundary - the scenery and pedestrians are constantly changing according to the four seasons and day and night, just like a random melodrama under a limited theme, which is a scenery of each other. People's eyes often fall on the imagination of how to build a richer life through the furnishings of the showcase.




ÎÒÃÇÔÚ´Ó»¯Éú̬Éè¼ÆÐ¡ÕòÍê³ÉÁËÒ»´Î»ëÈ»Ìì³ÉµÄÉè¼ÆÊµÑ飬£¬£¬£¬£¬£¬£¬Í¬Ê±£¬£¬£¬£¬£¬£¬£¬ÎÒÃÇÒ²¶ÔÔÆ¹ÈµÄÃ÷Ìì³äÂúÁËºÃÆæ¡£¡£¡£¡£¡£¡£¡£
We completed a natural design experiment in Conghua Ecological Design Town. At the same time, we are also full of curiosity about the future of Yungu.


½¨³Éºó£¬£¬£¬£¬£¬£¬£¬ÕâÀï³ÐÔØÁËÎÞÏÞ¿ÉÄÜ¡ª¡ªËü»á³ÉΪ³ÐÔØÈËÃDZ¼Ã¦µÄÐÄÁéµÄÒ»·½¾»ÍÁ£¬£¬£¬£¬£¬£¬£¬½«Çå¾²ÈÚ»ãÓÚ´ËÂ𣿣¿£¿£¿£¿£¿£¿£¿ÓÖ»òÐíÔÚ¶àÄêºó£¬£¬£¬£¬£¬£¬£¬Ëü»á±»ÂÌÒ°Ö²ÎïÑÚÂñ£¬£¬£¬£¬£¬£¬£¬ÖعéÇÄÈ»ÄØ£¿£¿£¿£¿£¿£¿£¿£¿
After completion, it will carry infinite possibilities. Will it become a pure land that carries the busy hearts of people, and integrate the tranquility? Or maybe after many years, it will be buried by green plants and return to silence.

µ±Ò¹É«½µÁÙ£¬£¬£¬£¬£¬£¬£¬µÆ¹âµãÁÁÒÕÊõ£¬£¬£¬£¬£¬£¬£¬Ôƹȱ»Ô¶É½Óµ±§ÓÚ»³ÖУ¬£¬£¬£¬£¬£¬£¬Ò»Çж¼ÔÆÔÆÈÚÇ¢¶øÓÅÃÀ¡£¡£¡£¡£¡£¡£¡£
We wish the site could constantly tell its stories. Life and development will continue to be staged here.

ÎÒÃÇÆÚ´ýÔ°µØÒ»Ö±µØÊö˵ËüµÄ¹ÊÊ£¬£¬£¬£¬£¬£¬£¬¶øÉúÑÄÓëÉú³¤Ò²»áÔÚÕâÀïÒ»Ö±ÉÏÑÝ£¬£¬£¬£¬£¬£¬£¬ÉúÉú²»Ï¢¡£¡£¡£¡£¡£¡£¡£
When the night falls, the lights illuminate the art, and Yungu is embraced by the mountains from a far distance, everything is harmonious and beautiful.

Éè¼ÆËµ£º
ÎÒÃǵÄÏîÄ¿ÊÇ×éÍŵÄÃÅ»§ÇøÓò£¬£¬£¬£¬£¬£¬£¬ºã¾ÃÒÔÀ´ÎÒÃǹØÓÚÕâÒ»½ÚµãµÄ´òÔì×·ÇóÊÓ¾õÔ¶Ô¶Áè¼ÝÆä¹¦Ð§ÐÔ£¬£¬£¬£¬£¬£¬£¬¶ø¾°¹ÛÓëÐÞ½¨ÖÐÐÄËÆºõ×ÜÊÇÔÚ¾ÙÐÐ×Å¡°×¨ÒµÇÖÕ¼¡±£¬£¬£¬£¬£¬£¬£¬ÆäЧ¹ûÔòÊÇ»¥Îªèäèô£¬£¬£¬£¬£¬£¬£¬Ð§¹ûÒ²´ó´òÕÛ¿Û¡£¡£¡£¡£¡£¡£¡£ÕâÒ»´Î£¬£¬£¬£¬£¬£¬£¬ÎÒÃÇÏ£ÍûÍ»ÆÆÕâÖÖ¹ÖȦ£¬£¬£¬£¬£¬£¬£¬½«Èý¸öÉè¼Æ×¨Òµ×÷Ϊһ¸öרҵȥÉú³¤£¬£¬£¬£¬£¬£¬£¬Ê¹ÃÅ»§²»µ«¾ßÓмøÉÍÐÔ£¬£¬£¬£¬£¬£¬£¬¸ü¼æ¾ßÆä¹¦Ð§ÐÔ¡ª¡ªÕâ¶ÔÎÒÃÇÒ²ÊÇÒ»´ÎÌØ±ðµÄÌôÕ½¡£¡£¡£¡£¡£¡£¡£
ÏîÄ¿¾àÀë¹ãÖÝÊÐÇø¼Ý³µÖ»ÐèÒ»¸ö¶àСʱ£¬£¬£¬£¬£¬£¬£¬µ«È´ÓÐ×ŵÃÌì¶ÀºñµÄ×ÔÈ»ÇéÐΡ£¡£¡£¡£¡£¡£¡£ÎÒÃÇÉú³¤ÓÚɽˮ֮¼ä£¬£¬£¬£¬£¬£¬£¬ÔÚ¶¼»áÉú³¤µÄÀú³ÌÖмû¶àÁ˸ßÂ¥´óÏ㬣¬£¬£¬£¬£¬£¬µ±ÎÒÃǽӴ¥µ½ÕâÀïµÄɽˮʱ£¬£¬£¬£¬£¬£¬£¬Ôٴλص½×ÔȻ֮ÖУ¬£¬£¬£¬£¬£¬£¬»áÈÃÈËÇé²»×Ô½ûµØ±¬·¢Ò»ÖÖÇ×½üºÍÊìϤ֮Òâ¡£¡£¡£¡£¡£¡£¡£
Ôں󳡣¬£¬£¬£¬£¬£¬£¬ÎÒÃÇÑÓÐøÁË¡°×ÔȻ΢ÐÞ½¨¡±µÄÉè¼ÆÀíÄ£¬£¬£¬£¬£¬£¬½èÖúÔ°µØ×Ô¼ºµÄˮϵºÍ¸ß²î£¬£¬£¬£¬£¬£¬£¬´òÔìÁËһϵÁÐ×ÔÈ»Ìñ¾²µÄ±õË®¿Õ¼ä¡£¡£¡£¡£¡£¡£¡£Éè¼ÆÀíÄîÖÐÓµÓÐÈý¸öÒªº¦´Ê£¬£¬£¬£¬£¬£¬£¬µ«ÊÂʵÉÏÎÒÃÇÏ£ÍûÓÃÕâÈý¸ö´Ê½²ÊöµÄÖ»ÊÇÒ»¸ö¹ÊÊ¡ª¡ªÔƹȡ¤ÃÎÖþÊÇËùÓÐÌõ¼þϽ»Ö¯±¬·¢µÄÒ»¸ö¹¦Ð§ÐÔ³¡ºÏ£¬£¬£¬£¬£¬£¬£¬ËüÊÇÐÎÏ󣬣¬£¬£¬£¬£¬£¬Ò²ÊÇÎÒÃÇÄܹ»¿ú¼ûɽˮµÄÒ»Éȳ÷´°£¬£¬£¬£¬£¬£¬£¬ËüÊÇÔÚÒ»¸öÍêÕûµÄ×ÔÈ»ÇéÐÎÖÐÐγɵÄÅäºÏÌå¡£¡£¡£¡£¡£¡£¡£
¡ª¡ªggpoker¹ÙÍø¹ãÖÝÉè¼ÆÔº

